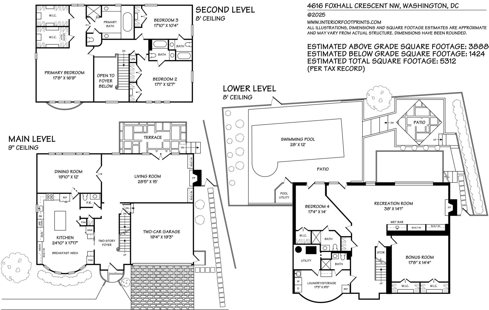
Introducing 4616 Foxhall Crescent NW—an impressive brick residence tucked away at the quiet end of one of Washington, DC’s most prestigious neighborhoods, Foxhall Crescent. This exceptional four-bedroom, five-and-a-half-bath home spans three meticulously finished levels, and sits on a rare lot featuring substantial patio space, and a private outdoor pool. Designed by renowned architect Arthur Cotton Moore, this home showcases many of his signature finishes and architectural details, creating a truly distinctive living experience.
Step inside to a grand two-story foyer, wrapped in marble flooring and flooded with natural light from an oversized window. The thoughtfully designed kitchen opens seamlessly to the adjacent gathering and dining areas, creating a modern floorplan for everyday living. Custom wallpaper and tailored window treatments enhance this space, while extensive built-in cabinetry provides an fantastic blend of style and highly functional storage. At the center of the kitchen sits a large island with bar seating, surrounded by top-of-the-line stainless steel appliances. A designer backsplash and custom pendant lighting add a contemporary touch, while a beverage refrigerator and integrated storage drawers enhance convenience. The paneled refrigerator blends effortlessly into the cabinetry, and pantry is discreetly tucked to the side for additional organization. Continue through the butler’s door into the formal dining room, an inviting space perfectly suited for hosting larger gatherings. Crown molding frames the room, while expansive ...