Nestled amid mature trees and manicured gardens on a prominent corner lot in Wesley Heights, this remarkable home showcases classic shingle architecture at its finest. Impeccably designed and thoughtfully maintained, it offers a rare combination of architectural charm, privacy, and modern comfort in one of Washington’s most desirable neighborhoods. The property’s lush landscaping is supported by an in-ground sprinkler system, ensuring year-round beauty and ease of maintenance.
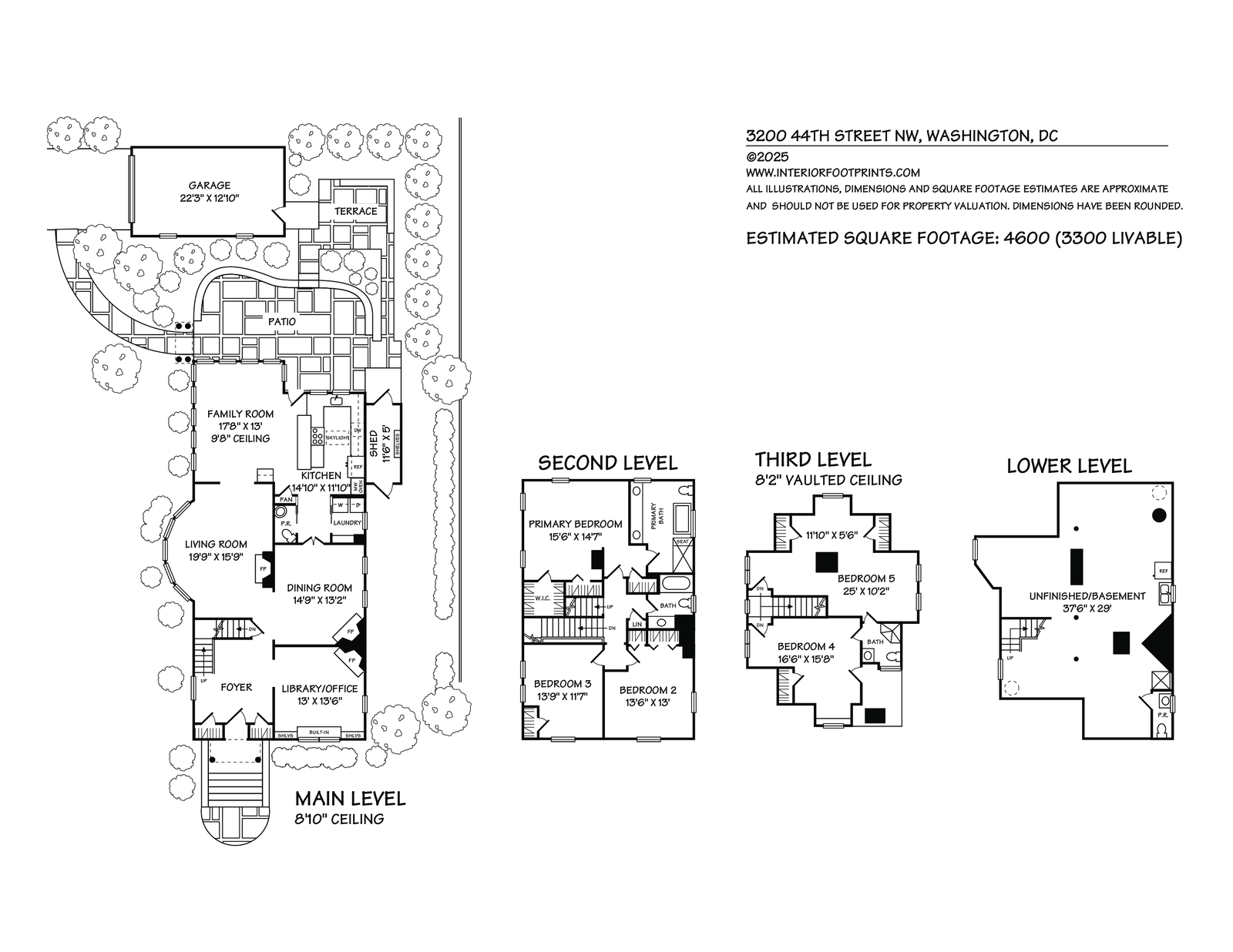
The main level offers an ideal blend of elegance and livability, featuring a designated office, formal living and dining rooms, a powder room, and an updated kitchen that opens to a bright and spacious family room. The office, dining room, and living room each feature their own fireplace, adding warmth, character, and a sense of timeless elegance throughout the main level. The kitchen is equipped with premium appliances, including a Sub-Zero refrigerator, Thermador wall oven and microwave, and a Wolf five-burner cooktop. Sunlight fills the interiors through abundant windows, creating a warm and welcoming atmosphere. Multiple outdoor entertaining spaces extend from this level, including two lovely patio areas perfect for al fresco dining and relaxed gatherings, an expansive side yard, and convenient access to the garage.
Upstairs, the second level hosts three bedrooms in total, including a generous primary suite with an updated en-suite bathroom featuring a free-standing soaking tub, frameless glass shower, and dual vanity. Two additional bedrooms offer spacious closets and ...