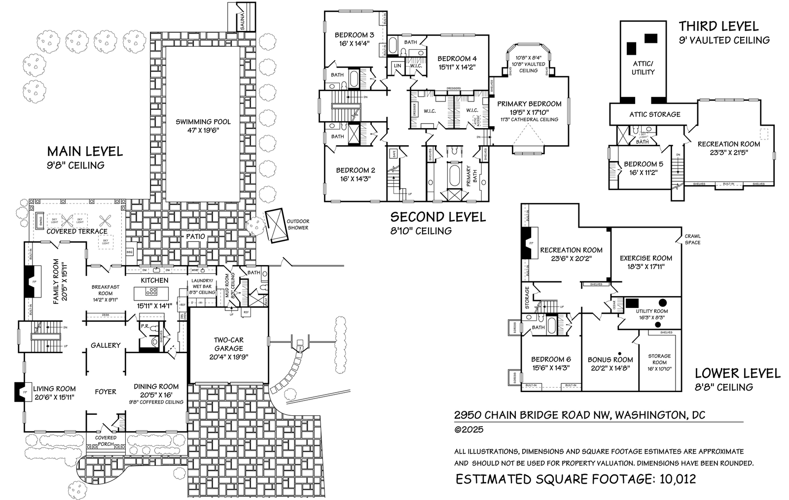
Ideally located in the coveted Kent neighborhood of Washington, DC, this extraordinary custom stone residence by Jim Gibson blends timeless elegance with modern luxury. Offering approximately 10,000 square feet of beautifully finished living space on a rare 10,650-square-foot flat lot, the home sits directly across from the 37-acre Battery Kemble National Park, providing an exceptional sense of space and serenity.
Designed for both grand entertaining and comfortable daily living, the home features 10-foot ceilings, expansive formal and informal spaces, and a gourmet eat-in Kitchen that opens seamlessly to the Family Room. The gracious Foyer and Gallery set a tone of understated sophistication, leading to a spacious Living Room and Dining Room ideal for gatherings.
The cathedral-ceiling Primary Suite offers a peaceful retreat with two walk-in closets and a luxurious spa bath, complemented by three additional en-suite bedrooms on the same level. A newly added upper floor provides nearly 1,000 square feet of flexible space—perfect for a private office, studio, or guest suite—with an additional bedroom, full bath, and storage.
The Lower Level features 8’8” ceilings, a Family Room, Exercise Room, Craft Room, and another Bedroom with En-Suite Bath.
Outdoors, resort-style amenities include a 46’ x 18’ pool, outdoor sauna and shower, covered terrace with skylights and fans, and multiple spaces for grilling and entertaining. A two-car garage and additional driveway parking complete this remarkable offering—an ...