
Great location
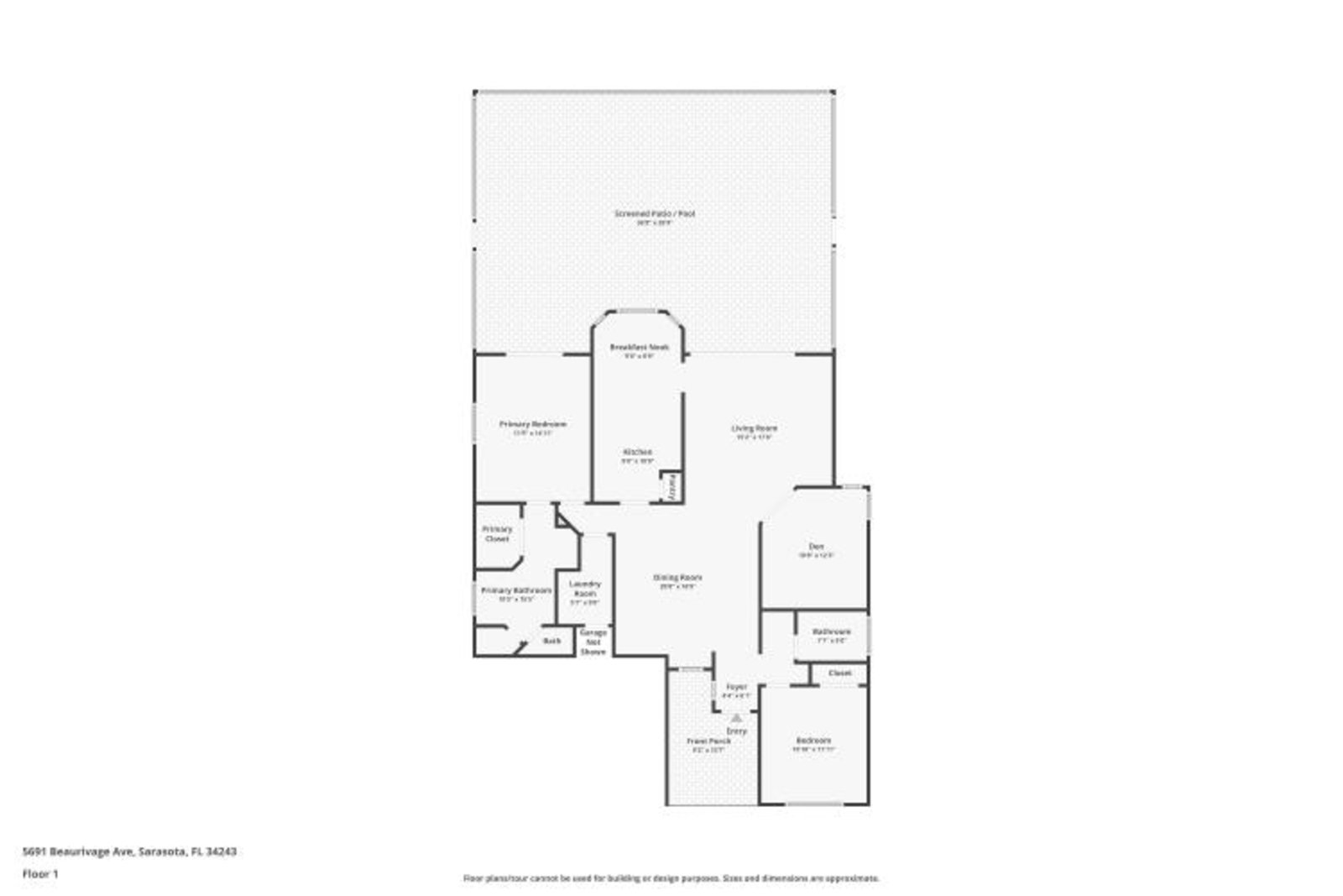
Skip the commute. Roll out of bed and be at your desk in 2 minutes – private office space. Need a 3rd bedroom? Add a closet. Off the beaten path, you’ll discover, 5691 Beaurivage nestled amongst nature with urban convenience to the University Parkway corridor the mecca of international shopping, restaurants and community events. This home delivers privacy. You’ll dub your screened pool area, “BBQ Headquarters”. There, in the privacy of your backyard, you’ll enjoy grilling, growing vegetables and soaking up the warm Florida sunshine. The Neighbors say, “they love it! It’s quiet and so close to shopping and doctors --the sidewalks are awesome and so inviting. I love taking my dog out for a stroll.” The kitchen’s cozy breakfast nook is a perfect sanctuary for morning coffee and long view of the private pool and backyard. Throughout the living area the floors are tiled in a gentle neutral color while both bedrooms have soft carpet to tickle your feet. The garage is spacious and fits 2 cars plus has a workspace. It’s already lined with shelves for practical storage, with a convenient side door exiting to the sunlit side yard. Less than 2 miles walk, jog, bike or drive to Detweiler’s Market or Whole Foods– either direction. This home has been lovingly maintained; HVAC 2024 – Tiled Roof 2015 – Chlorine Pool. Make new friends, call for your private viewing.
Serving Sarasota and Manatee counties since 2007