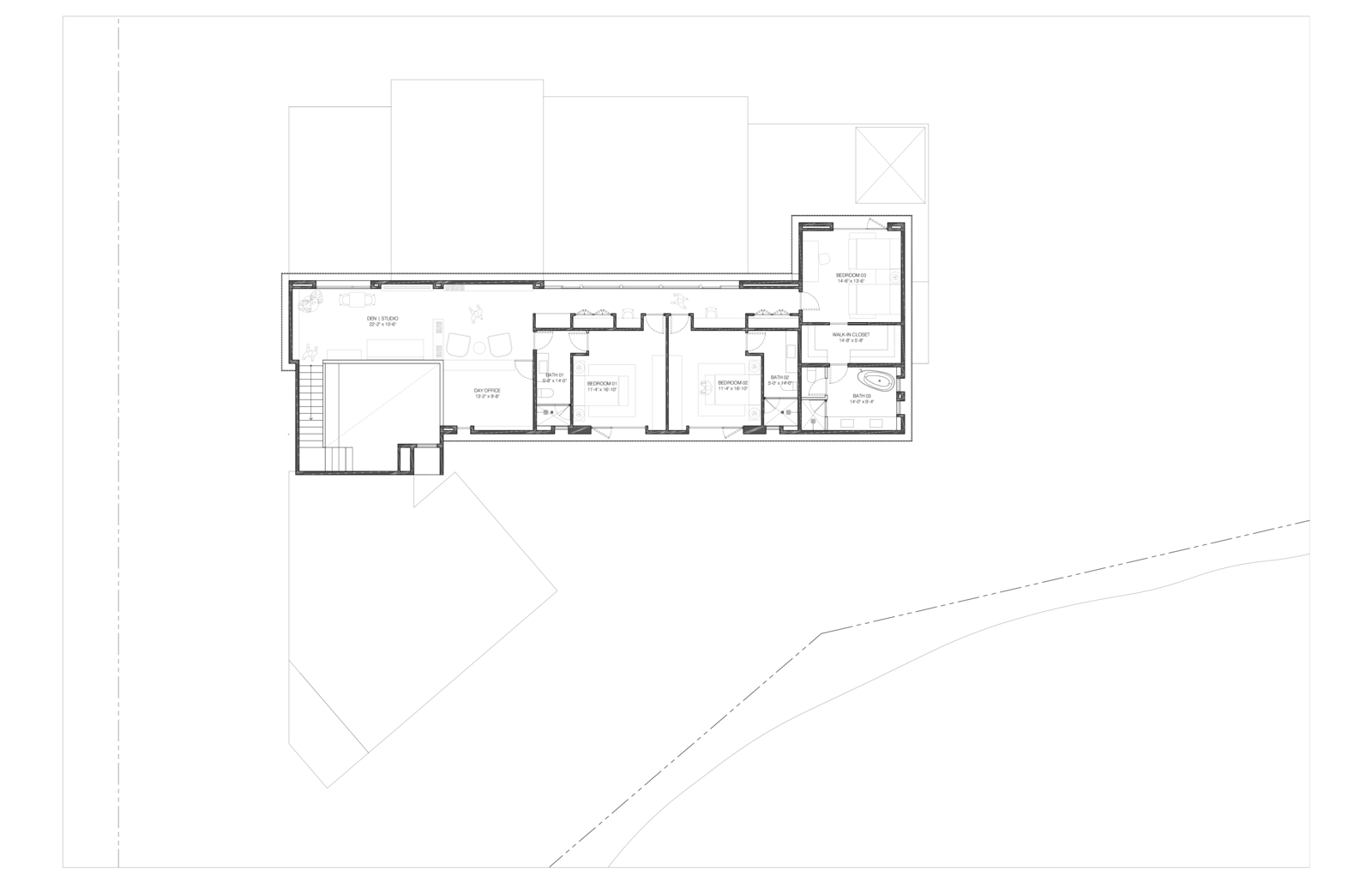
This is not just a house. It’s a discovery. And as such, it was found, not built — like a ruin half-buried in the land, then pulled forward in time. The builder describes it Mesoamerican Contemporary. A cruciform plan grounded in Cantera stone... black, gray and volcanic. It anchors the structure like myth anchors a memory. The form is deliberate. Geometry sharpened by light. There is no waste, no excess. Only rhythm. Wood, glass, stone — each in balance, each unafraid of its own texture. The walls rise clean and quiet. The lines do not shout. They cut. The rooms hold breath. The light moves. Spaces are open, but not empty. They are made for stillness. Made for gathering. Made for living without apology. A custom pivot door and gracious foyer invite you inside to discover a soaring double-height entry with walnut finished walls, a striking floating staircase, designer fixtures and gorgeous hardwood floors. The main living area appears to be floating in the trees. A 27 ft collapsible wall seamlessly blends the indoor/outdoor spaces. The kitchen is like no other with a massive stone waterfall island, sleek custom cabinetry, and a top-of-the-line European appliances. Clean and contemporary and perfect for entertaining. The adjacent scullery continues the modern line but takes its inspiration from the chef’s kitchens of France. The layout is practical yet aesthetically pleasing. The primary bedroom was designed to feel like you have checked into a luxury hotel. ...

Rela