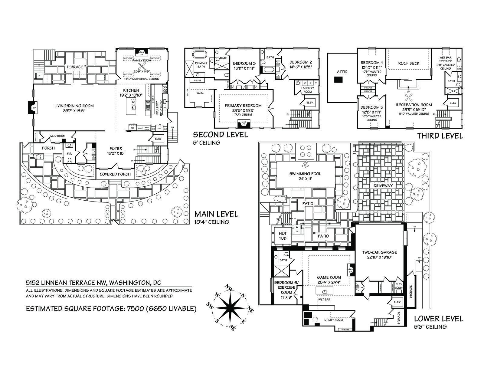
Completed in 2021, this custom built six-bedroom, five-and-a-half-bath residence exemplifies exceptional design and craftsmanship in one of D.C.’s most coveted neighborhoods. The home encompasses approximately 7,500 square feet on the inside and showcases an all-white brick exterior, triple-pane tilt-and-turn windows imported from Germany, and a masonry privacy wall that encloses the pool, hot tub and grounds.
Inside, soaring ceilings ranging from 9 to 15 feet and Brazilian teak flooring create a striking sense of scale and sophistication. The main level features a cathedral-ceiling living room with a gas fireplace and dining area, a cozy family room - and all centered around a gourmet kitchen appointed with Brazilian quartzite countertops, custom cabinetry, and a separate scullery with its own outdoor access—perfect for entertaining.
The luxurious primary suite includes a tray ceiling, a private fireplace, generous walk-in closet, and spa-inspired bath with dual vanities, a soaking tub, and separate shower. Two additional bedrooms with ensuite baths and a full laundry room complete the upper level, while the third level offers two additional bedrooms, a vaulted-ceiling recreation room with wet bar, and a rooftop terrace ideal for entertaining or quiet retreat.
The lower level provides exceptional flexibility with a large game room, exercise room, and full bath that conveniently serves pool guests. A two-car garage with ...

