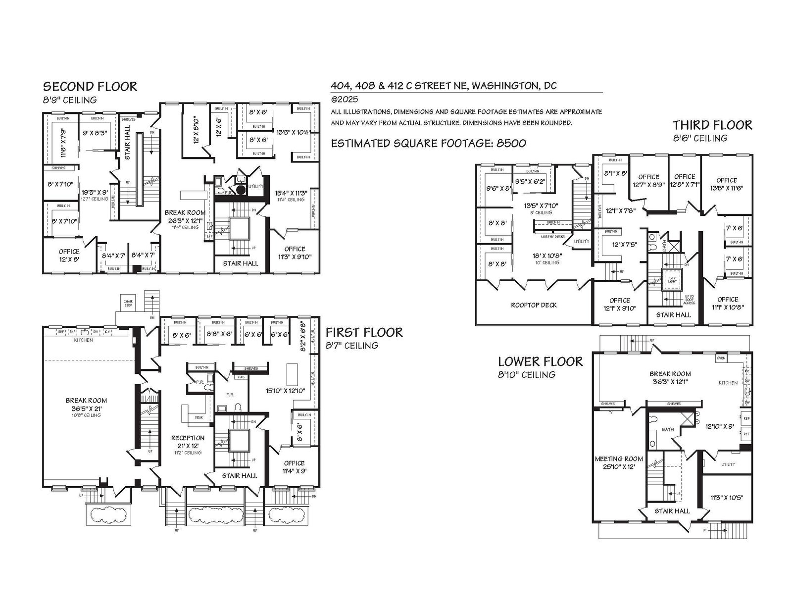
Discover an exceptional opportunity to occupy a premier commercial office space spanning 8,500 net usable square feet across three contiguous historic townhouses at 404, 408, and 412 C Street NE, perfectly positioned on Stanton Park in the heart of Washington, D.C. This versatile office environment offers a flexible layout that can accommodate a wide range of professional needs, making it ideal for corporate headquarters, creative agencies, or collaborative teams seeking both functionality and prestige.
Step inside to find open office areas that maximize natural light and foster collaboration, while a selection of executive offices provides privacy and a professional setting for leadership teams. Conference rooms are strategically placed to support meetings of all sizes, from client presentations to team strategy sessions, ensuring seamless operations throughout the workday.
The space also includes a small, private outdoor area, perfect for breaks, informal meetings, or social gatherings, bringing an inviting touch of greenery overlooking the park and the US Capitol building. Additionally, the property offers six dedicated parking spaces, a rare and valuable amenity in this vibrant, urban setting.
Architecturally, these classic townhouses retain their historic charm while being thoughtfully adapted for modern office use. The combination of character and functionality creates an inspiring professional atmosphere that reflects both sophistication and practicality.
Situated on the iconic Stanton Park, this location provides easy access to public ...
Map
Presented By


