La Maison, with its private two acre setting, motor court driveway and generously-proportioned rooms, is an ideal residence for grand entertaining and everyday living. Located next to McLean's Gold Coast, this home features a light-filled layout, designer fixtures and finishes and numerous renovated and upgraded spaces. With an ideal location, it's only one light to DC and a short drive to Tysons and Arlington.
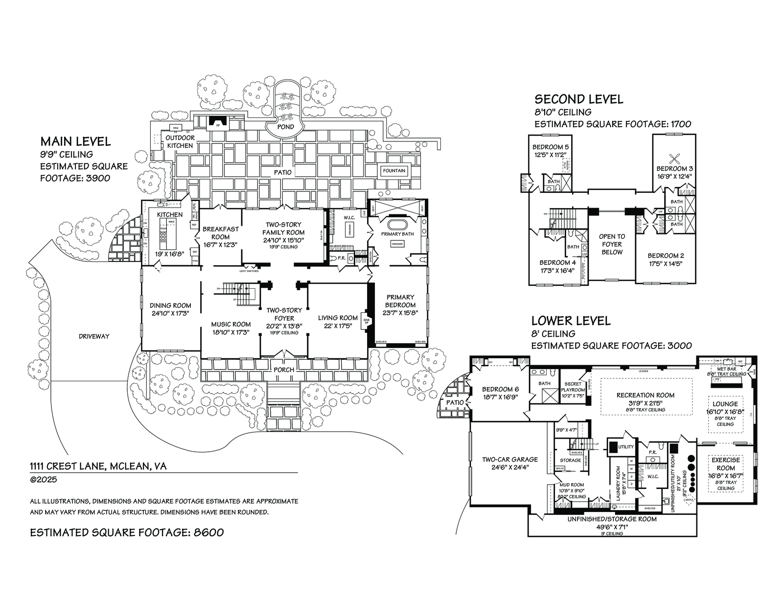
Flanked by the living room and music room, a dramatic two-story foyer welcomes guests inside. Through the music room, there is an embassy-sized dining room that leads to the gourmet kitchen with a large island, soapstone counters and top-tier appliances. Off of the kitchen, there is a cozy breakfast room that opens to the two-story family room with elegant built-ins and French doors leading to the expansive rear patio with a fireplace, waterfall pond and an outdoor kitchen. An arched hallway leads to a powder room and the primary suite. A true retreat, it offers a bedroom with arched built-ins, a refined walk-in closet and a sumptuous primary bath with dual sinks, a vessel bathtub and an oversized shower.
Upstairs, there are four bedroom suites, each with their own fully-renovated bathrooms and generously-sized closets.
The lower level has been completely renovated with an expansive recreation room opening to a wet bar and billiards area, with an adjacent exercise room. There is also a hidden playroom concealed behind bookshelves, a sixth bedroom suite with a beautiful bathroom with dual sinks, and a gaming closet. A ...