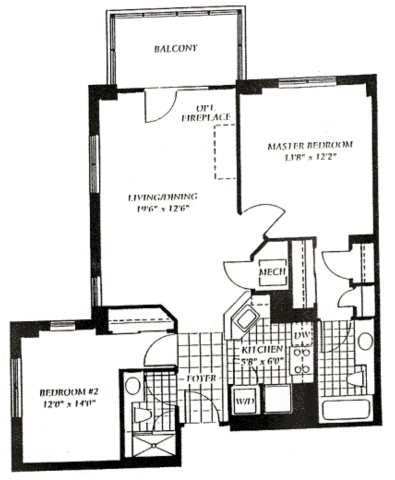
Welcome to Windsor Plaza: A collection of sought-after condominium residences ideally located just moments from the Ballston Metro Station in Arlington, Virginia. Unit 201 is a corner unit that offers nearly 900 square-feet with two-bedrooms, two full-baths, and an extra-wide garage parking space that can accomodate two full-size cars. Recently updated, features include: hardwood flooring throughout, stainless steel kitchen applicances, quartz countertops, a gas fireplace, and a glass enclosed sunroom that overlooks the courtyard. Enjoy the luxurious & convenient building ameneties: swimming pool, storage cages, on-site management, park-like courtyard, and more. Welcome home.