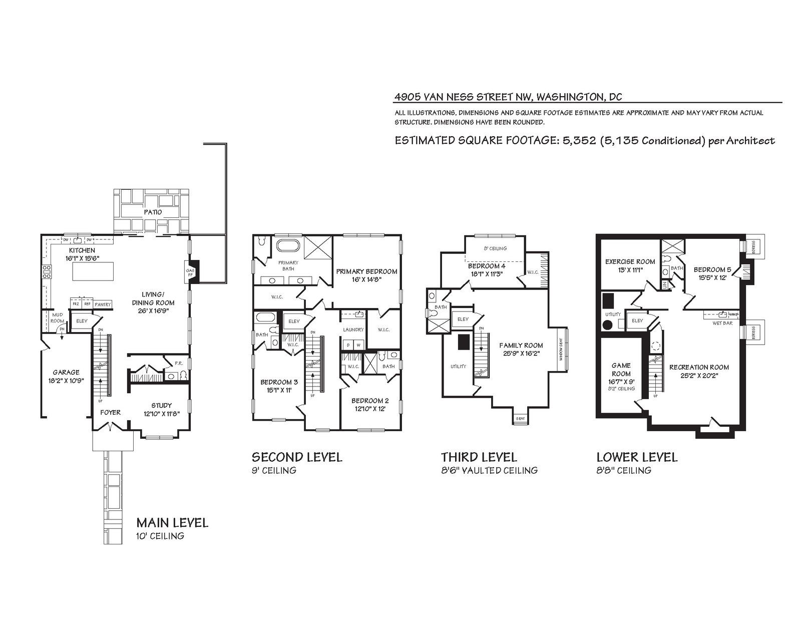
Welcome to 4905 Van Ness Street NW—a refined and newly constructed home that blends timeless architecture with modern luxury in the heart of Spring Valley. Designed by the renowned Danube Group in partnership with GTM Architects, CMX Construction, and acclaimed designer Martha Vicas, this residence spans approximately 5,352 square feet of exquisitely finished living space across four thoughtfully designed levels, all seamlessly connected by a private elevator. The main level showcases 10-foot ceilings and an open, airy layout ideal for contemporary living. A spacious living and dining area anchored by a gas fireplace flows into a chef’s kitchen outfitted with high-end appliances, a generous center island, and custom cabinetry. A private study, stylish powder room, mudroom, and access to an attached garage complete this level. The second floor features three well-proportioned bedroom suites, including a tranquil primary retreat with dual walk-in closets and a spa-inspired bathroom. A convenient laundry room and abundant closet space enhance everyday functionality. The third level offers a sunlit family room with vaulted ceilings and charming built-in window seating—perfect for relaxation or gathering—as well as a fourth bedroom suite with its own walk-in closet and bath. The lower level is designed for entertainment and flexible living, offering a fifth bedroom and full bath, a large recreation room with wet bar and wine storage, a separate game room, and a ...

