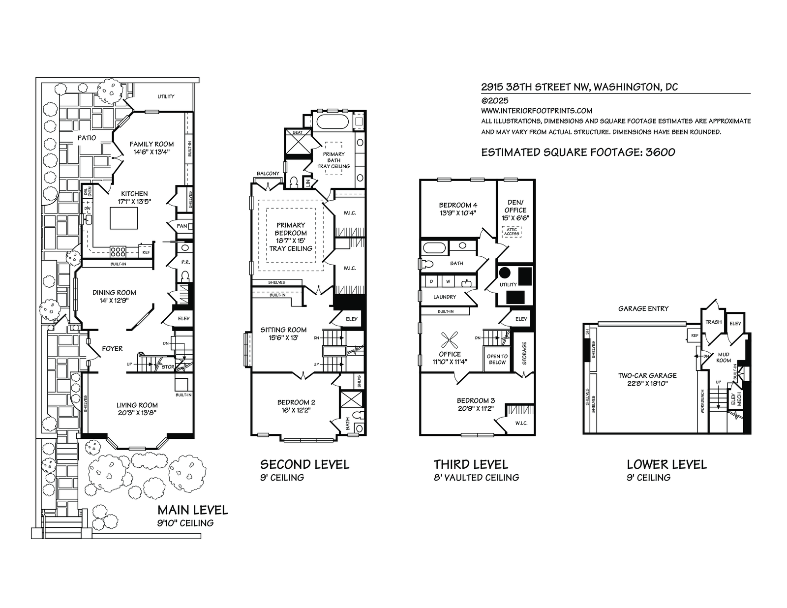
Nestled in the prestigious Alban Row enclave, this timeless four-story brick residence combines classic architecture with refined modern living. A discreet side entrance opens into a gracious main level featuring soaring ceilings, hardwood floors, exceptional natural light throughout and a private elevator that provides seamless access to all four floors.
A welcoming entry area sets the tone for the home’s elegant design. The main level offers a sophisticated living room with custom built-in bookshelves and abundant sunlight. The formal dining room features bespoke cabinetry and is ideal for hosting dinner parties or intimate gatherings. The chef’s kitchen is a culinary standout, outfitted with top-of-the-line Viking and Sub-Zero appliances, an eat-in island, walk-in pantry, and large storage closet. Adjacent to the kitchen is a comfortable family room with built-ins and direct access to a beautifully landscaped private garden—perfect for outdoor entertaining. A stylish powder room completes this level.
The first upper level offers a spacious landing that functions perfectly as a home office or additional family area with custom built-ins. The expansive primary suite features two walk-in closets and a luxurious en-suite bath with dual vanities, soaking tub, separate shower, and private water closet. A second bedroom on this level enjoys an en-suite bath, large closet, and a spectacular oversized window that fills the space with natural light.
The second upper level provides flexible living space with a generous landing, two ...