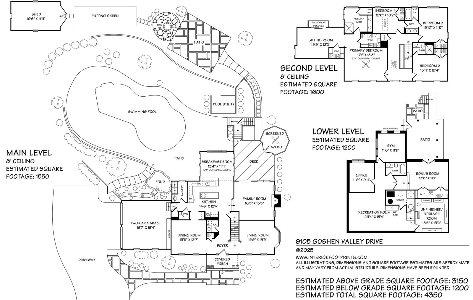
Introducing 9105 Goshen Valley Drive — a stunning brick colonial gracefully situated on a picturesque two-acre estate in the sought-after Greenhills Farm neighborhood of Laytonsville Maryland. This four-bedroom, four-and-a-half-bathroom residence offers an updated lower level with a versatile bonus room, and is nestled on a serene lot featuring a beautiful pool, expansive patio, deck, screened-in porch, putting green, and impeccably landscaped grounds with peaceful wooded views.
Step inside and be welcomed by gleaming hardwood floors that flow seamlessly throughout the main level. The open-concept kitchen and family room offer the highly desirable layout today’s buyers crave—perfect for everyday living and effortless entertaining. The modern kitchen is tastefully designed, featuring a custom tile backsplash, gas cooktop, dual wall ovens, and a sleek stainless steel refrigerator. A charming eat-in area is framed by a grand Palladian window, offering fabulous views of the backyard, while high-top bar seating at the countertop adds casual dining space. Abundant cabinetry and a spacious walk-in pantry provide all the storage you need to stay organized. Step down into the inviting family room, where a striking stone wood-burning fireplace serves as the focal point. This comfortable space is perfect for lounging, and offers direct access to the upper-level deck and screened-in porch through a glass door—seamlessly blending indoor comfort with outdoor entertaining. The dining room connects to the kitchen through a convenient butler’s pantry ...
Map
Presented By

