Glover Park is an enduringly popular NW neighborhood, beloved for its convenient, close-in location and friendly community spirit. It is close to all the shops, restaurants and local businesses along Wisconsin Ave and upper Georgetown, and to schools, playgrounds, public bus routes and the nature trails of Glover Archbold Park.
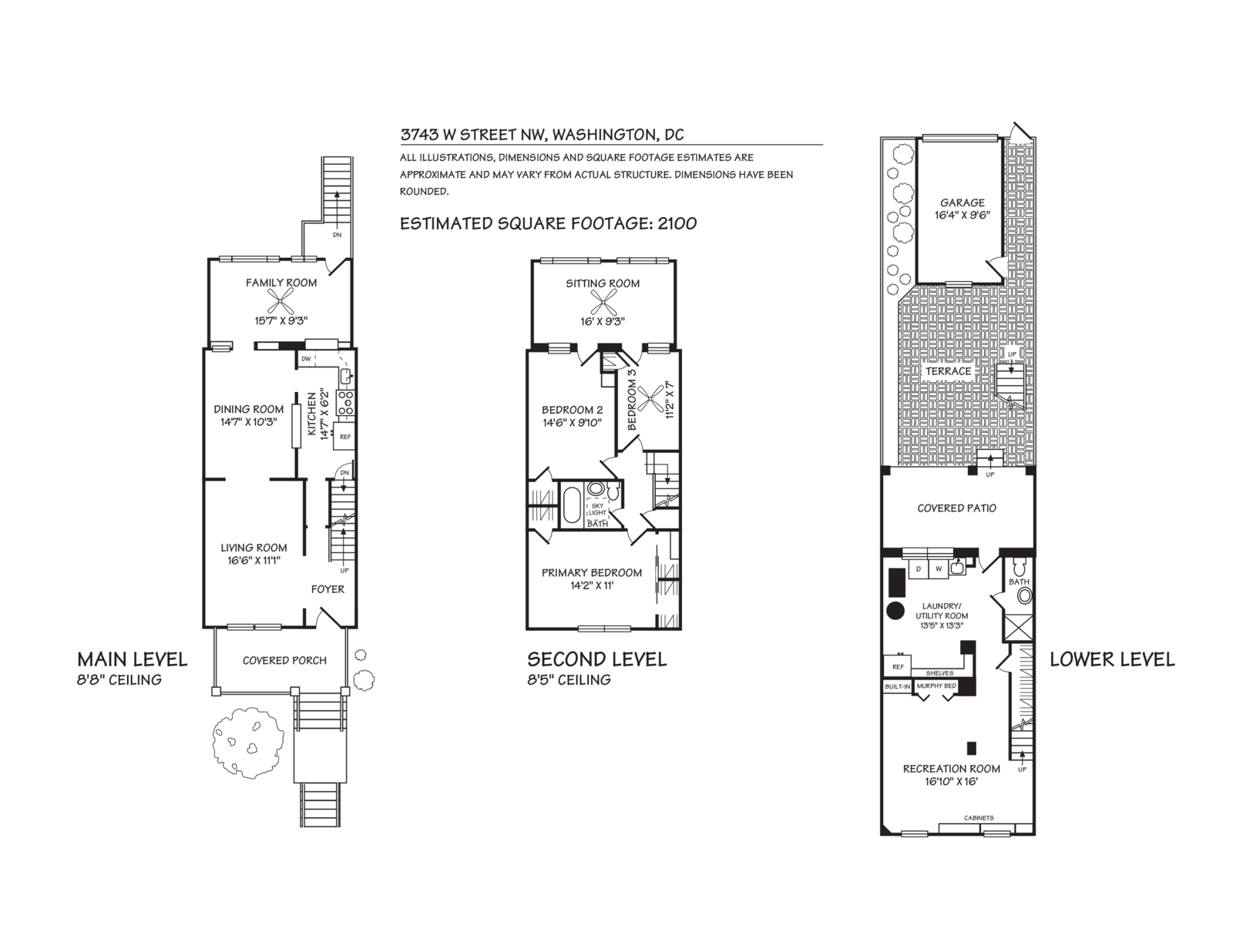
The delightful home at 3743 W Street has an inviting covered front porch, where neighbors congregate in nice weather. Inside are sunny first floor living, dining and family rooms and an updated, partially open black and white kitchen. Three bedrooms plus a finished sun porch (a perfect home office) are on the second floor; the lower level features a spacious, carpeted family room with built-in shelving and a Murphy bed, as well as a second full bath with shower and large laundry/storage room. A charming rear terrace, accessible from both the family room and the lower level, has plenty of space for dining under the stars, and a freestanding garage can be used for a vehicle or for storage.