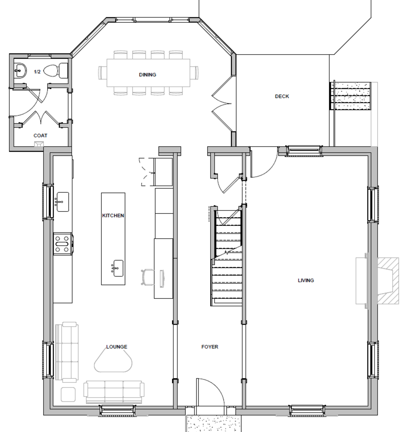
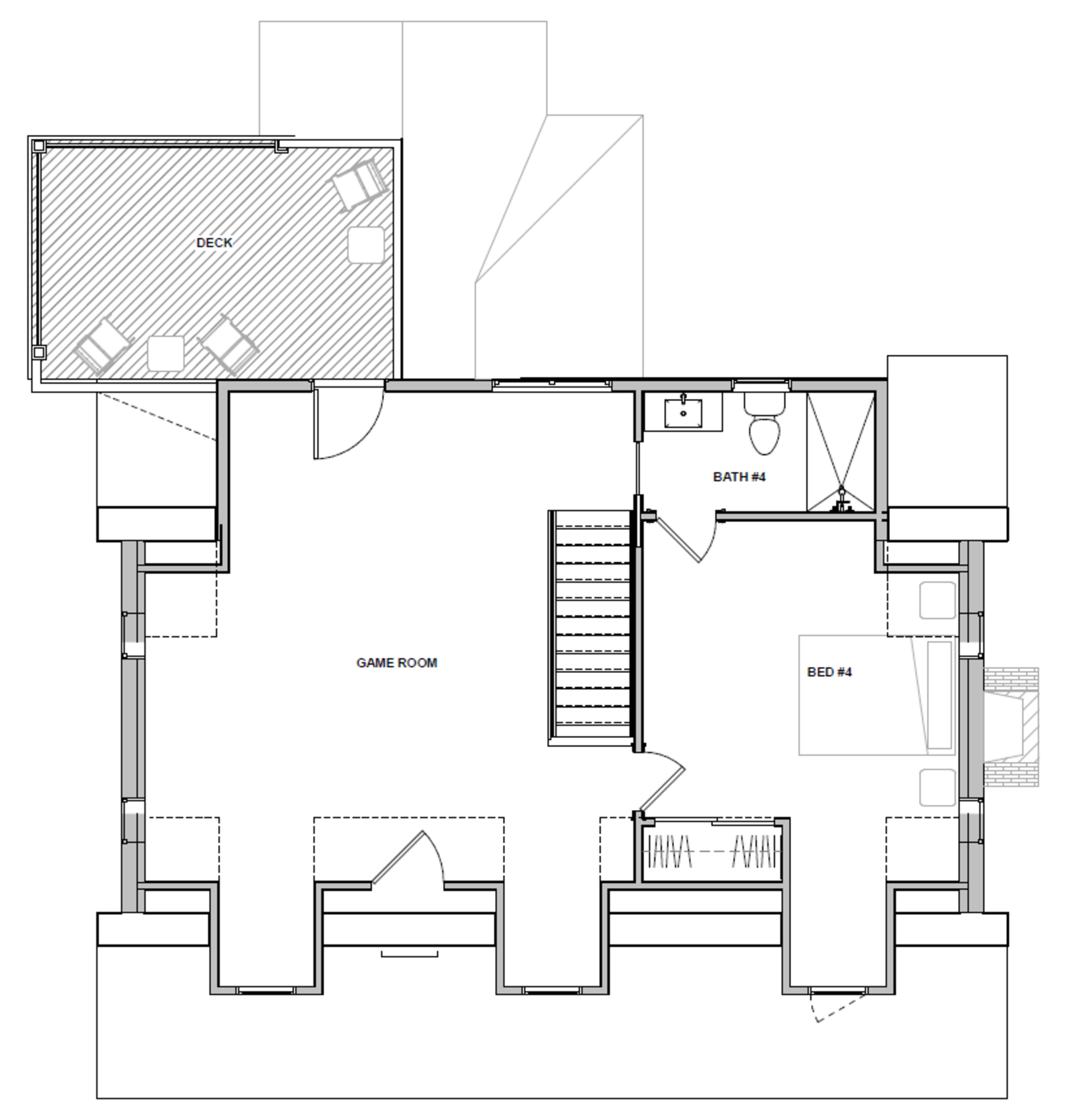
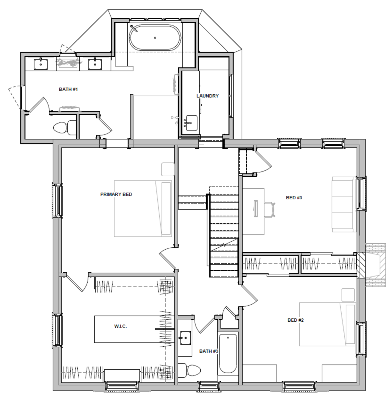
Another complete transformation by WJ Development sited at the end of a cul-de-sac on a very large and level parcel in Observatory Circle! 6 BR, 5.5 BA, 6,050 total SF, 0.20 acre flat lot with rare detached 3-car garage and ADU apartment suite. Custom finishes and luxury appliances throughout. 9’ main level ceilings; open kitchen to family and dining rooms; 3 bedrooms and 2 baths on the 2nd level including a lux primary suite with walk-in wardrobe room and spacious primary bath; lounge, bedroom, and bath on the top level along with a large roofdeck; and a bedroom, bath, and recreation room in the lower level. There is a separate apartment suite above the 3-car garage with walk-out deck space. The property is close to Glover Park shops and restaurants, as well as the National Cathedral and Cathedral Commons. Zoned for Stoddert ES, Hardy MS, and MacArthur HS.

