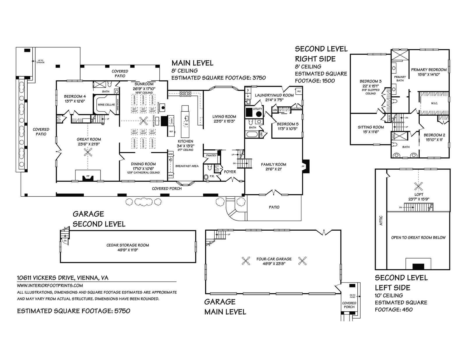
Sited off of a cul-de-sac on 5+ private and wooded acres in Vienna, this one-of-a-kind, Mediterranean-style residence offers a thoughtfully expanded and updated home with 5 bedrooms, 4.5 bathrooms, a detached four-car garage, expansive outdoor living spaces including a wrap-around porch, and a possibly subdividable lot. Ideal for large-scale entertaining and day-to-day family living, the light-filled floor plan offers a foyer, a formal living room with a bay window and a gourmet kitchen. The eat-in kitchen has been fully renovated with a large island, Wolf, SubZero and Cove appliances, honed granite and quartz countertops, a walk-in pantry and a breakfast room with a butler's pantry with two large wine refrigerators. The kitchen opens to a large sunroom with skylights, a wood stove, an additional dining space/office and access to the backyard porch. Off of the sunroom, there is a two-story great room with a fireplace, a 1,000-bottle temperature-controlled wine room and access to the expansive side porch. A loft area with additional storage, a main-level bedroom and a full bath complete this area of the home. On the opposite side of the house, off of the foyer, a large family room offers a gas fireplace and access through French doors to the front patio. There is also a fifth bedroom, an updated full bath and a laundry room/mudroom. Upstairs, the primary suite offers a walk-in closet and a renovated primary bath with dual vanities and a seamless glass shower with a rain shower head. Additionally, there are two more bedrooms, a full bath and a loft ...