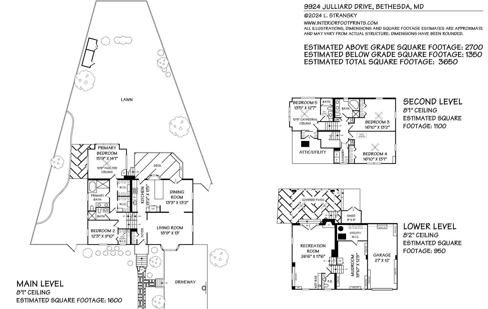
Step into the modern elegance of 9924 Julliard Drive, an unexpectedly spacious residence nestled in the coveted Ashburton neighborhood of Bethesda, Maryland. Boasting a generous floor plan spanning nearly 3,700 square feet, this home features five bedrooms and four and a half bathrooms. With a thoughtfully updated kitchen and an impressive addition, every corner of this home was uniquely designed.
The handsome brick exterior welcomes you to this fabulous home perfectly positioned on the sunny-side of the street with entry hardwood flooring. The living area is bathed in natural light streaming through oversized windows enveloping the main level. The kitchen takes center stage, showcasing the desired modern and open floor plan, adorned with custom wood cabinetry, designer backsplash, a gas range stove, stainless steel Jenn-Air appliances, and additional countertop space with inviting bar seating surrounded by a bay window. Tile floors wrap the kitchen space, seamlessly merging into the adjacent dining area—a perfect setting for both gatherings and everyday meals. Both the kitchen and dining spaces open up to the deck through glass doors, creating a smooth transition for indoor-outdoor entertainment.
As you ascend the stairs, you'll discover the primary suite addition—a true oasis within the home. Meticulously planned, this addition showcases vaulted ceilings and an abundance of natural light pouring through windows that enclose the backside of the home. Dual walk-in closets with built-in shelving offer limitless storage possibilities. The ...
Map
Presented By

