Documents
Brochures
Photos
Map
Photos
Map
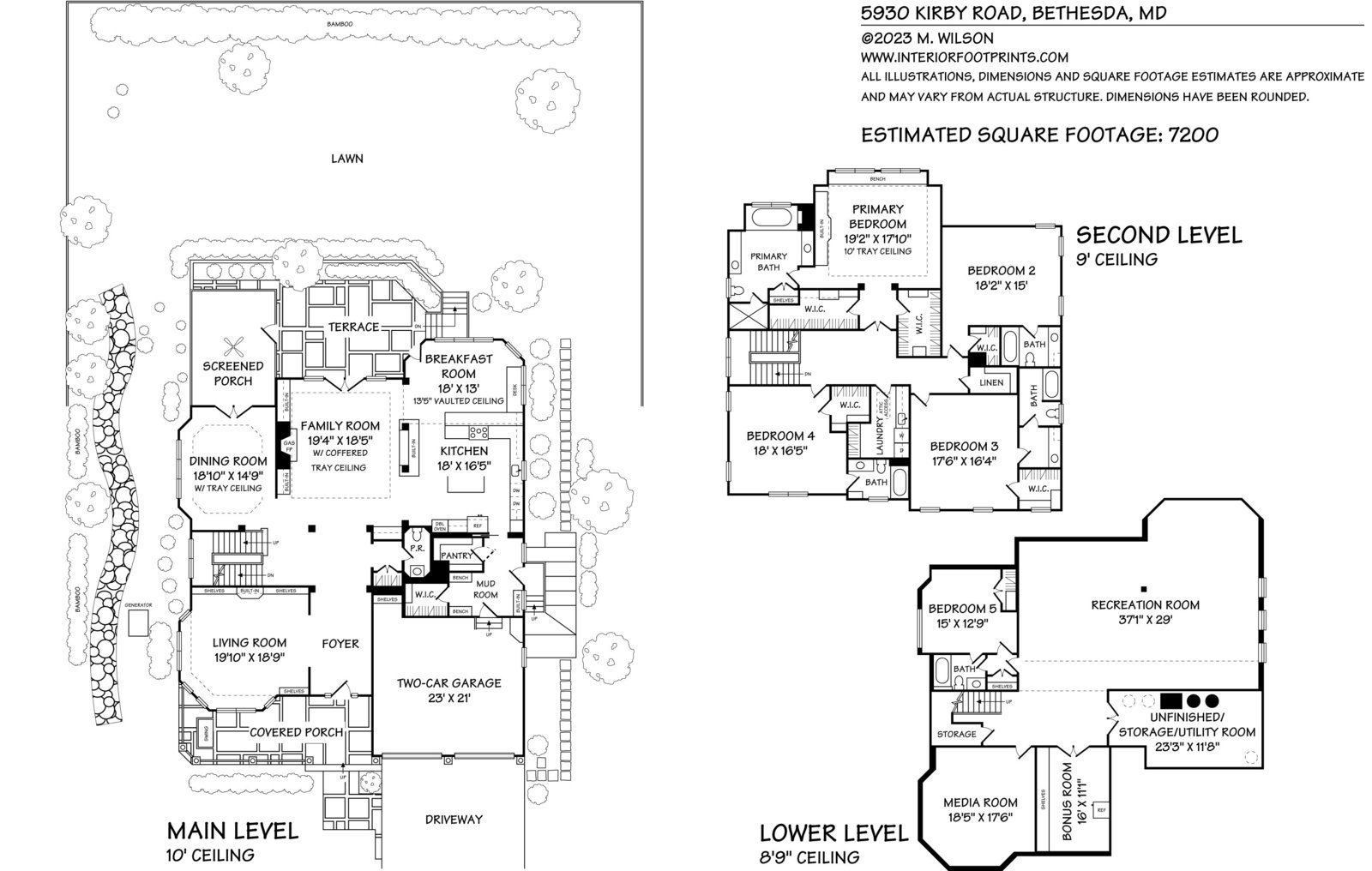
5930 Kirby Road
Bethesda
,
MD
20817
Photos
5 Bathrooms
6,777 sqft
Home Size
12,000 sf
Lot Size
View All 31 Photos
Map
5930 Kirby Rd
Bethesda
,
MD
20817
Presented By
Margot Wilson
Sales Associate
Washington Fine Properties, LLC
202-549-2100
margot.wilson@wfp.com
Get In Touch
First Name
*
Last Name
*
Email
*
Phone
*
Comment
*
Send Inquiry
Slideshow
Photo Grid
Loading thumbnails...
Loading...
×