Documents
Brochures
Photos
Map
Photos
Map
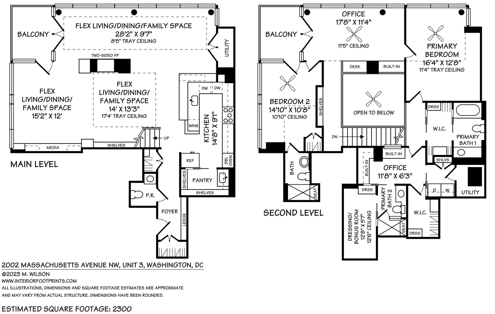
2002 Massachusetts Ave NW #3
Washington
,
DC
20036
Photos
$1,995,000
2 Bedrooms
4 Bathrooms
2,300 sqft
Home Size
View All 30 Photos
Map
2002 Massachusetts Ave NW Unit R3
Washington
,
DC
20036
Presented By
Margot Wilson
Sales Associate
Washington Fine Properties, LLC
202-549-2100
margot.wilson@wfp.com
Get In Touch
First Name
*
Last Name
*
Email
*
Phone
*
Comment
*
Send Inquiry
Slideshow
Photo Grid
Loading thumbnails...
Loading...
×