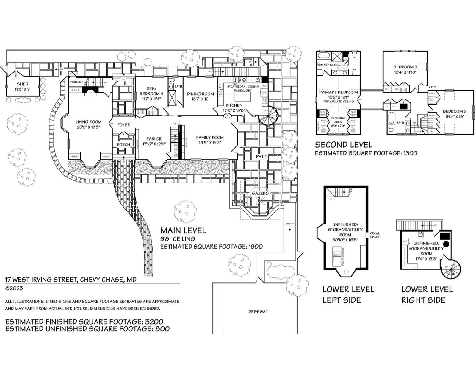
Unparalleled opportunity in Chevy Chase Village! Set back from the street on a stunning, level lot of over ¼ acre just over the DC line at the corner of Irving and Magnolia streets, this clapboard Victorian with its signature gazebo is one of the most recognized and admired in the Village and will speak to buyers who do not even know they are in the market for a new home! Owned by the same family since the 1970s and renovated and expanded over the years with acclaimed architect Hugh Newell Jacobsen, it is a marriage of contemporary and Victorian design. Featuring Jacobsen’s distinct detail, including high ceilings, floor to ceiling windows, egg crate bookcases, turret and more, the award-winning residence is light-filled and welcoming with a wonderful flow for entertaining and everyday living. A generous main level features a glassed entry to a parlor, fabulous living room, spacious family room and dining room adjacent to the kitchen with island, plus main level bedroom and bath. The upper level includes an impressive primary suite with a vaulted, origami styled ceiling, dressing area and bath, and is connected to a laundry, additional two bedrooms and bath via a spectacular glass link. Two separate lower level areas are available for storage and offer potential for future renovation. The striking, custom Jacobsen gazebo and private patio offer tranquility and privacy within the fully fenced, expansive grounds. The flexible floor plan provides an option for those looking for one-level living and the property is a delight for Jacobsen purists. Should one ...